Presentado por
Gabriele Azzi
Given For Yachting
Piazza Quadra, 8
07020 Porto Rotondo
Italia
Descripción
Auto traducir:
EN
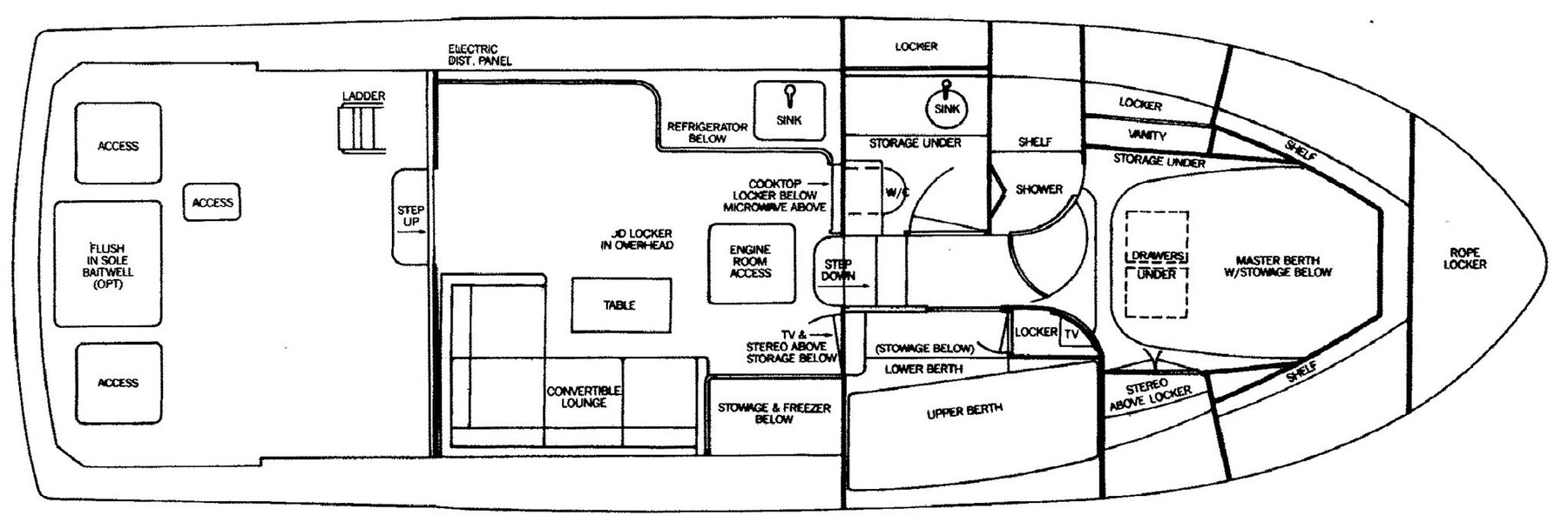
Bertram 37 Convertible "Victoria": A Regenerated Icon. With the 37 Convertible, Bertram ushered in a new era of speed and cutting-edge materials, achieving a superb result. Victoria is a rare unit, created for the Italian market with an original 220V electrical system and preserved with extreme care by the only historical owner. In the last two years, a major refit has raised the standard of the boat: the installation of new 500 hp Volvo engines and the complete renewal of the systems make this boat look like new. Available in Tuscany, Victoria is ready to sail and amaze with its condition and performance. Price plus commissions.
Navigation equipment:
Rudder angle indicator, Electronic engine control, 2 On-Board Computer (Volvo), Odometer (Raymarine), Depth Sounder (Raymarine), GPS (Raymarine), Chartplotter (Raymarine), VHF Radio (VHF Fly e VHF di rispetto in dinette).
Staging and technical:
2 Engine Alarm, Bilge Alarm, Water pressure pump, Batteries (nuove 2021), Battery charger (12 V e 24 V), Deck Shower, Headlights fixed on the stem, Hydraulic Flaps, Fire Extinguishing System (con controllo esterno), Anchor Chain Washdown, Courtesy Lights, Gangway (elettroidraulica), Platform, 3 Automatic Bilge Pump, Entry door, Shorepower connector, Water harbor connector system, Voltage Rectifier, Electric Windlass, swimming ladder, Horn, Bow Winches.
Domestic Facilities onboard:
Air Conditioning (doppio ciclo (rev. 2021)), Warm Water System (bivalente), 12V Outlets, 220V Outlets, Electric Toilet.
Entertainment:
Speakers, Radio AM/FM, Hi-Fi.
Fishing accessories:
Fishing Rod Holder, Fishbox.
Kitchen and appliances:
Galley, Microwave Oven (Combi).
Upholstery:
Cushions (Nuova 2021), Instrument Cover, 2 Seat Cover, Sunshade (pozzetto).
IT
Bertram 37 Convertible "Victoria": Un’Icona Rigenerata. Con il 37 Convertible, Bertram ha inaugurato una nuova era di velocità e materiali d'avanguardia, ottenendo un risultato superbo. Victoria è un’unità rara, nata per il mercato italiano con impianto elettrico originale a 220V e conservata con estrema cura dall'unico proprietario storico. Negli ultimi due anni, un profondo refitting ha elevato lo standard dell’imbarcazione: l’installazione di nuovi motori Volvo da 500 Hp e il rinnovo integrale degli impianti rendono questa barca pari al nuovo. Disponibile in Toscana, Victoria è pronta a navigare e stupire per condizioni e prestazioni. Prezzo oltre commissioni.
Strumentazione elettronica di navigazione:
Angolo barra, Comando motori elettronico, 2 Computer di bordo (Volvo), Contamiglia (Raymarine), Ecoscandaglio (Raymarine), GPS (Raymarine), Plotter (Raymarine), Radio VHF (VHF Fly e VHF di rispetto in dinette).
Allestimento tecnico e di coperta:
2 Allarme motore, Allarme sentina, Autoclave, Batterie (nuove 2021), Caricabatterie (12 V e 24 V), Doccia esterna, Fari fissi a poppa, Flap idraulici, Impianto antincendio (con controllo esterno), Lavaggio catena, Luci di cortesia, Passerella (elettroidraulica), Piattaforma, 3 Pompa di sentina automatica, Porta ingresso, Presa 220V banchina, Presa acqua banchina, Raddrizzatore, Salpa Ancore Elettrico, Scaletta da bagno, Tromba, Winch tonneggio di prua.
Dotazioni domestiche di bordo:
Aria condizionata (doppio ciclo (rev. 2021)), Boiler (bivalente), Prese interne 12v, Prese interne 220v, WC marino elettrico.
Intrattenimento:
Altoparlanti, Radio AM/FM, Stereo.
Accessori da Pesca:
Portacanne, Vasca pescato.
Cucina ed elettrodomestici:
Cucina, Microonde (Combi).
Tappezzerie:
Cuscineria completa (Nuova 2021), Telo copriconsolle, 2 Telo coprisedile, Tendalino (pozzetto).
FR
Bertram 37 Cabriolet « Victoria » : une icône régénérée. Avec la 37 Convertible, Bertram inaugura une nouvelle ère de vitesse et de matériaux de pointe, obtenant un résultat superbe. Le Victoria est une unité rare, créée pour le marché italien avec un système électrique 220V d’origine et préservée avec un soin extrême par le seul propriétaire historique. Au cours des deux dernières années, une importante refonte a élevé le niveau du bateau : l’installation de nouveaux moteurs Volvo de 500 ch et le renouvellement complet des systèmes donnent à ce bateau un aspect neuf. Disponible en Toscane, le Victoria est prêt à naviguer et à émerveiller par son état et ses performances. Prix plus commissions.
Equipement électronique de navigation:
Indicateur d'angle de barre, Commande électrique, 2 Ordinateur fixe de bord (Volvo), Loch (Raymarine), Sondeur pêche (Raymarine), GPS (Raymarine), Lecteur de cartes (Raymarine), Radio VHF (VHF Fly e VHF di rispetto in dinette).
Equipement de pont:
2 Alarme moteur, Alarme de pompe de cale, Eau sous pression, Batteries (nuove 2021), Chargeur de batterie (12 V e 24 V), Douche de cockpit, Phares fixes arrière, Flaps hydrauliques, Extincteur(s) fixe(s) (con controllo esterno), Lavage de chaine, Éclairage de courtoisie, Passerelle (elettroidraulica), Plateforme arrière, 3 Pompe de cale automatique, Porte latérale, Prise de quai, Connexion eau sous pression à quai, Onduleur, Guindeau électrique, Echelle de bain, Corne, Winch électrique avant.
Equipement intérieur:
Air conditionné (doppio ciclo (rev. 2021)), Ballon d'eau chaude (bivalente), Prises interieures 12v, Prises interieures 220v, Toilettes électriques.
Divers:
Haut-parleurs, Radio AM/FM, Hi-Fi.
Equipement de pêche:
Porte-cannes, Bac à poissons.
Equipement de confort:
Cuisine, Four micro-ondes (Combi).
Sellerie et tauds:
Sellerie complète (Nuova 2021), Taud de console, 2 Taud de siège, Taud de soleil (pozzetto).
DE
Bertram 37 Cabriolet "Victoria": Eine regenerierte Ikone. Mit dem 37er Cabriolet leitete Bertram eine neue Ära von Geschwindigkeit und modernen Materialien ein und erzielte ein hervorragendes Ergebnis. Victoria ist ein seltenes Gerät, das für den italienischen Markt mit einem originalen 220V-Elektrosystem entwickelt und vom einzigen historischen Besitzer mit äußerster Sorgfalt konserviert wurde. In den letzten zwei Jahren hat eine umfassende Überholung den Standard des Bootes gehoben: Die Installation neuer 500-PS-Volvo-Motoren und die vollständige Erneuerung der Systeme lassen dieses Boot wie neu aussehen. Victoria ist in der Toskana erhältlich und bereit zu segeln und mit seinem Zustand und seiner Leistung zu begeistern. Preis plus Provisionen.
Navigation elektronische Instrumentation:
Ruderlageanzeiger, Elektronische Motorensteuerung, 2 Yacht PC (Volvo), Logge (Raymarine), Echolot (Raymarine), GPS (Raymarine), Kartenplotter (Raymarine), UKW-Funk (VHF Fly e VHF di rispetto in dinette).
Deck und technische Ausrüstung:
2 Motoralarm, Bilgealarm, Druckwasserpumpe, Batterien (nuove 2021), Batterieladegerät (12 V e 24 V), Cockpitdusche, Scheinwerfer am Heck, Trimmklappen hydraulisch, Feuer-Löschanlage (con controllo esterno), Ketten-Waschanlage, Nachtbeleuchtung, Gangway (elettroidraulica), Plattform, 3 automatische Bilgepumpe, Eingangstür, Landanschluß, Wasseranschluss, Rectifier, elektrische Ankerwinde, Badeleiter, Signalhorn, Verholwinde auf dem Vordeck.
Anlagen an Bord:
Klimaanlage (doppio ciclo (rev. 2021)), Warmwasserbereiter (bivalente), 12V Steckdose, 220V Steckdose, elektrische Toilette.
Unterhaltung:
Lautsprecher, Radio AM/FM, Stereoanlage.
Angeln:
Halterung für Angelruten, Fischbehälter.
Küchen-und Haushaltsgeräte:
Pantry, Mikrowelle (Combi).
Polster und Persenninge:
Polster (Nuova 2021), Instrumenten Abdeckung, 2 Sitz Abdeckung, Sonnenpersenning (pozzetto).
ES
Bertram 37 Descapotable "Victoria": Un icono regenerado. Con el 37 Convertible, Bertram inauguró una nueva era de velocidad y materiales de vanguardia, logrando un resultado soberbio. Victoria es una unidad rara, creada para el mercado italiano con un sistema eléctrico original de 220V y preservada con extremo cuidado por el único propietario histórico. En los últimos dos años, una gran reforma ha elevado el nivel del barco: la instalación de nuevos motores Volvo de 500 hp y la renovación completa de los sistemas hacen que este barco parezca nuevo. Disponible en la Toscana, el Victoria está listo para navegar y asombrar con su estado y rendimiento. Precio más comisiones.
Instrumentación electrónica de navegación:
Indicador de ángulo de timón, Control de motor electrónico, 2 Ordenador de abordo (Volvo), Cuenta millas (Raymarine), Sonda (Raymarine), GPS (Raymarine), Plotter (Raymarine), Radio VHF (VHF Fly e VHF di rispetto in dinette).
Equipo técnico y de cubierta:
2 Alarma motor, Alarma sentina, Bomba de agua dulce, Baterías (nuove 2021), Cargador de batería (12 V e 24 V), Ducha externa, Focos fijos en popa, Flaps hidráulicos, Sistema de extinción (con controllo esterno), Bomba de baldeo, Luces de cortesía, Pasarela (elettroidraulica), Plataforma, 3 Bomba de achique automática, Puerta de entrada, Toma de 220V para el puerto, Toma de agua para el puerto, Rectificador, Molinete eléctrico, Escalera de baño, Bocina, Cabrestantes de proa.
Enseres domesticos de abodo:
Aire acondicionado (doppio ciclo (rev. 2021)), Calentador (bivalente), Tomas de 12v, Enchufes de 220v, WC marino eléctrico.
Entretenimiento:
Altavoces, Radio AM/FM, Stereo.
Accesorios de Pesca:
Porta cañas, Pecera de capturas.
Cocina y electrodomésticos:
Cocina, Microondas (Combi).
Tapicerías:
Cojinería completa (Nuova 2021), Funda cónsola, 2 Funda asientos, Toldo (pozzetto).
NL
Bertram 37 Cabriolet "Victoria": Een geregenereerd icoon. Met de 37 Cabriolet luidde Bertram een nieuw tijdperk van snelheid en geavanceerde materialen in, met een uitstekend resultaat. Victoria is een zeldzame eenheid, gemaakt voor de Italiaanse markt met een origineel 220V elektrisch systeem en met uiterste zorg bewaard door de enige historische eigenaar. In de afgelopen twee jaar heeft een grote refit de standaard van de boot verhoogd: de installatie van nieuwe 500 pk Volvo-motoren en de volledige vernieuwing van de systemen laten deze boot er als nieuw uitzien. Verkrijgbaar in Toscane, is Victoria klaar om te zeilen en te verrassen met zijn staat en prestaties. Prijs plus commissies.
Elektronische navigatie-instrumenten:
Roerhoek indicator, Elektronische motorbediening, 2 Scheepscomputer (Volvo), Log (Raymarine), Dieptemeter (Raymarine), GPS (Raymarine), Kaartplotter (Raymarine), Marifoon (VHF Fly e VHF di rispetto in dinette).
Technische- en dekuitrusting:
2 Motor Alarm, Bilge Alarm, Waterdruk systeem, Accu's (nuove 2021), Acculader (12 V e 24 V), Buitendouche, Zoeklicht geïnstalleerd op spiegel, Hydraulische trimflappen, Brandblussysteem (con controllo esterno), Anker (ketting) spoelsysteem, Sfeerverlichting, Loopplank (elettroidraulica), Platform, 3 Automatische bilgepomp, Ingangsdeur, Walaansluiting 230V, Walaansluiting voor water, City-/Water-connection, Gelijkrichter, Elektrische ankerlier, Zwemtrap, Hoorn, Boeglier.
Huishoudelijke apparatuur aan boord:
Airconditioning (doppio ciclo (rev. 2021)), Warmwater boiler (bivalente), 12V Stopcontacten, 230V Stopcontacten, Elektrisch toilet.
Vermaak:
Luidsprekers, Radio AM/FM, Stereo.
Vissen Accessoires:
Houder voor vishengels, Bassin om vis in te bewaren.
Keuken & Apparatuur:
Keuken, Magnetron/Oven (Combi).
Bekleding:
Kussens (Nuova 2021), Stuurstand afdekking, 2 Stoelbekleding, Zonneluifel (pozzetto).
RU
Бертрам 37 Кабриолет «Виктория»: Регенерированная икона. С кабриолетом 37 года Бертрам открыл новую эру скорости и передовых материалов, добившись выдающегося результата. Victoria — редкая установка, созданная для итальянского рынка с оригинальной электрической системой 220 В и сохраненная с исключительной заботой единственным историческим владельцем. За последние два года масштабный ремонт поднял уровень лодки: установка новых двигателей Volvo мощностью 500 л.с. и полное обновление систем сделали лодку похожей на новую. Доступный в Тоскане, Victoria готов к плаванию и удивляет своим состоянием и характеристиками. Цена плюс комиссионные.
Электронные навигационные приборы:
Угол поворота, Electronic engine control, 2 Бортовой компьютер (Volvo), спидометр (Raymarine), Эхолот (Raymarine), GPS (Raymarine), плоттера (Raymarine), Радио VHF (VHF Fly e VHF di rispetto in dinette).
Техническое оснащение и оснащение палубы:
2 Аварийный сигнал двигателя, Аварийный сигнал трюма, Автоклав, аккумуляторы (nuove 2021), Зарядное устройство (12 V e 24 V), внешняя душа, Основные фары корме, Гидравлические закрылки, Системы противопожарные (con controllo esterno), Стиральная цепях, любезность фонари, сходни (elettroidraulica), Платформа, 3 Автоматический трюмный насос, Входная дверь, Прямая розетка от причала, Прямая розетка от причала, Выпрямитель, Электрическая якорная лебедка, Трап ванной, Рупор, Токарно лебедки.
Бытовое оснащение на борту:
Кондиционер (doppio ciclo (rev. 2021)), котлом (bivalente), Внутренние розетки 12v, Внутренние розетки 220v, Электрический морской туалет.
Развлечения:
динамиков, Radio AM/FM, Привет-Fi.
Рыболовные аксессуары:
скобки удочка, Емкость для улова.
Кухня и бытовые приборы:
Кухня, микроволновых (Combi).
Обивка:
полное подушки (Nuova 2021), Защитное покрытие консоли, 2 Покрытие сидений, палатка для ВС (pozzetto).
Bertram 37 Convertible "Victoria": A Regenerated Icon. With the 37 Convertible, Bertram ushered in a new era of speed and cutting-edge materials, achieving a superb result. Victoria is a rare unit, created for the Italian market with an original 220V electrical system and preserved with extreme care by the only historical owner. In the last two years, a major refit has raised the standard of the boat: the installation of new 500 hp Volvo engines and the complete renewal of the systems make this boat look like new. Available in Tuscany, Victoria is ready to sail and amaze with its condition and performance. Price plus commissions.
Navigation equipment:
Rudder angle indicator, Electronic engine control, 2 On-Board Computer (Volvo), Odometer (Raymarine), Depth Sounder (Raymarine), GPS (Raymarine), Chartplotter (Raymarine), VHF Radio (VHF Fly e VHF di rispetto in dinette).
Staging and technical:
2 Engine Alarm, Bilge Alarm, Water pressure pump, Batteries (nuove 2021), Battery charger (12 V e 24 V), Deck Shower, Headlights fixed on the stem, Hydraulic Flaps, Fire Extinguishing System (con controllo esterno), Anchor Chain Washdown, Courtesy Lights, Gangway (elettroidraulica), Platform, 3 Automatic Bilge Pump, Entry door, Shorepower connector, Water harbor connector system, Voltage Rectifier, Electric Windlass, swimming ladder, Horn, Bow Winches.
Domestic Facilities onboard:
Air Conditioning (doppio ciclo (rev. 2021)), Warm Water System (bivalente), 12V Outlets, 220V Outlets, Electric Toilet.
Entertainment:
Speakers, Radio AM/FM, Hi-Fi.
Fishing accessories:
Fishing Rod Holder, Fishbox.
Kitchen and appliances:
Galley, Microwave Oven (Combi).
Upholstery:
Cushions (Nuova 2021), Instrument Cover, 2 Seat Cover, Sunshade (pozzetto).
IT
Bertram 37 Convertible "Victoria": Un’Icona Rigenerata. Con il 37 Convertible, Bertram ha inaugurato una nuova era di velocità e materiali d'avanguardia, ottenendo un risultato superbo. Victoria è un’unità rara, nata per il mercato italiano con impianto elettrico originale a 220V e conservata con estrema cura dall'unico proprietario storico. Negli ultimi due anni, un profondo refitting ha elevato lo standard dell’imbarcazione: l’installazione di nuovi motori Volvo da 500 Hp e il rinnovo integrale degli impianti rendono questa barca pari al nuovo. Disponibile in Toscana, Victoria è pronta a navigare e stupire per condizioni e prestazioni. Prezzo oltre commissioni.
Strumentazione elettronica di navigazione:
Angolo barra, Comando motori elettronico, 2 Computer di bordo (Volvo), Contamiglia (Raymarine), Ecoscandaglio (Raymarine), GPS (Raymarine), Plotter (Raymarine), Radio VHF (VHF Fly e VHF di rispetto in dinette).
Allestimento tecnico e di coperta:
2 Allarme motore, Allarme sentina, Autoclave, Batterie (nuove 2021), Caricabatterie (12 V e 24 V), Doccia esterna, Fari fissi a poppa, Flap idraulici, Impianto antincendio (con controllo esterno), Lavaggio catena, Luci di cortesia, Passerella (elettroidraulica), Piattaforma, 3 Pompa di sentina automatica, Porta ingresso, Presa 220V banchina, Presa acqua banchina, Raddrizzatore, Salpa Ancore Elettrico, Scaletta da bagno, Tromba, Winch tonneggio di prua.
Dotazioni domestiche di bordo:
Aria condizionata (doppio ciclo (rev. 2021)), Boiler (bivalente), Prese interne 12v, Prese interne 220v, WC marino elettrico.
Intrattenimento:
Altoparlanti, Radio AM/FM, Stereo.
Accessori da Pesca:
Portacanne, Vasca pescato.
Cucina ed elettrodomestici:
Cucina, Microonde (Combi).
Tappezzerie:
Cuscineria completa (Nuova 2021), Telo copriconsolle, 2 Telo coprisedile, Tendalino (pozzetto).
FR
Bertram 37 Cabriolet « Victoria » : une icône régénérée. Avec la 37 Convertible, Bertram inaugura une nouvelle ère de vitesse et de matériaux de pointe, obtenant un résultat superbe. Le Victoria est une unité rare, créée pour le marché italien avec un système électrique 220V d’origine et préservée avec un soin extrême par le seul propriétaire historique. Au cours des deux dernières années, une importante refonte a élevé le niveau du bateau : l’installation de nouveaux moteurs Volvo de 500 ch et le renouvellement complet des systèmes donnent à ce bateau un aspect neuf. Disponible en Toscane, le Victoria est prêt à naviguer et à émerveiller par son état et ses performances. Prix plus commissions.
Equipement électronique de navigation:
Indicateur d'angle de barre, Commande électrique, 2 Ordinateur fixe de bord (Volvo), Loch (Raymarine), Sondeur pêche (Raymarine), GPS (Raymarine), Lecteur de cartes (Raymarine), Radio VHF (VHF Fly e VHF di rispetto in dinette).
Equipement de pont:
2 Alarme moteur, Alarme de pompe de cale, Eau sous pression, Batteries (nuove 2021), Chargeur de batterie (12 V e 24 V), Douche de cockpit, Phares fixes arrière, Flaps hydrauliques, Extincteur(s) fixe(s) (con controllo esterno), Lavage de chaine, Éclairage de courtoisie, Passerelle (elettroidraulica), Plateforme arrière, 3 Pompe de cale automatique, Porte latérale, Prise de quai, Connexion eau sous pression à quai, Onduleur, Guindeau électrique, Echelle de bain, Corne, Winch électrique avant.
Equipement intérieur:
Air conditionné (doppio ciclo (rev. 2021)), Ballon d'eau chaude (bivalente), Prises interieures 12v, Prises interieures 220v, Toilettes électriques.
Divers:
Haut-parleurs, Radio AM/FM, Hi-Fi.
Equipement de pêche:
Porte-cannes, Bac à poissons.
Equipement de confort:
Cuisine, Four micro-ondes (Combi).
Sellerie et tauds:
Sellerie complète (Nuova 2021), Taud de console, 2 Taud de siège, Taud de soleil (pozzetto).
DE
Bertram 37 Cabriolet "Victoria": Eine regenerierte Ikone. Mit dem 37er Cabriolet leitete Bertram eine neue Ära von Geschwindigkeit und modernen Materialien ein und erzielte ein hervorragendes Ergebnis. Victoria ist ein seltenes Gerät, das für den italienischen Markt mit einem originalen 220V-Elektrosystem entwickelt und vom einzigen historischen Besitzer mit äußerster Sorgfalt konserviert wurde. In den letzten zwei Jahren hat eine umfassende Überholung den Standard des Bootes gehoben: Die Installation neuer 500-PS-Volvo-Motoren und die vollständige Erneuerung der Systeme lassen dieses Boot wie neu aussehen. Victoria ist in der Toskana erhältlich und bereit zu segeln und mit seinem Zustand und seiner Leistung zu begeistern. Preis plus Provisionen.
Navigation elektronische Instrumentation:
Ruderlageanzeiger, Elektronische Motorensteuerung, 2 Yacht PC (Volvo), Logge (Raymarine), Echolot (Raymarine), GPS (Raymarine), Kartenplotter (Raymarine), UKW-Funk (VHF Fly e VHF di rispetto in dinette).
Deck und technische Ausrüstung:
2 Motoralarm, Bilgealarm, Druckwasserpumpe, Batterien (nuove 2021), Batterieladegerät (12 V e 24 V), Cockpitdusche, Scheinwerfer am Heck, Trimmklappen hydraulisch, Feuer-Löschanlage (con controllo esterno), Ketten-Waschanlage, Nachtbeleuchtung, Gangway (elettroidraulica), Plattform, 3 automatische Bilgepumpe, Eingangstür, Landanschluß, Wasseranschluss, Rectifier, elektrische Ankerwinde, Badeleiter, Signalhorn, Verholwinde auf dem Vordeck.
Anlagen an Bord:
Klimaanlage (doppio ciclo (rev. 2021)), Warmwasserbereiter (bivalente), 12V Steckdose, 220V Steckdose, elektrische Toilette.
Unterhaltung:
Lautsprecher, Radio AM/FM, Stereoanlage.
Angeln:
Halterung für Angelruten, Fischbehälter.
Küchen-und Haushaltsgeräte:
Pantry, Mikrowelle (Combi).
Polster und Persenninge:
Polster (Nuova 2021), Instrumenten Abdeckung, 2 Sitz Abdeckung, Sonnenpersenning (pozzetto).
ES
Bertram 37 Descapotable "Victoria": Un icono regenerado. Con el 37 Convertible, Bertram inauguró una nueva era de velocidad y materiales de vanguardia, logrando un resultado soberbio. Victoria es una unidad rara, creada para el mercado italiano con un sistema eléctrico original de 220V y preservada con extremo cuidado por el único propietario histórico. En los últimos dos años, una gran reforma ha elevado el nivel del barco: la instalación de nuevos motores Volvo de 500 hp y la renovación completa de los sistemas hacen que este barco parezca nuevo. Disponible en la Toscana, el Victoria está listo para navegar y asombrar con su estado y rendimiento. Precio más comisiones.
Instrumentación electrónica de navegación:
Indicador de ángulo de timón, Control de motor electrónico, 2 Ordenador de abordo (Volvo), Cuenta millas (Raymarine), Sonda (Raymarine), GPS (Raymarine), Plotter (Raymarine), Radio VHF (VHF Fly e VHF di rispetto in dinette).
Equipo técnico y de cubierta:
2 Alarma motor, Alarma sentina, Bomba de agua dulce, Baterías (nuove 2021), Cargador de batería (12 V e 24 V), Ducha externa, Focos fijos en popa, Flaps hidráulicos, Sistema de extinción (con controllo esterno), Bomba de baldeo, Luces de cortesía, Pasarela (elettroidraulica), Plataforma, 3 Bomba de achique automática, Puerta de entrada, Toma de 220V para el puerto, Toma de agua para el puerto, Rectificador, Molinete eléctrico, Escalera de baño, Bocina, Cabrestantes de proa.
Enseres domesticos de abodo:
Aire acondicionado (doppio ciclo (rev. 2021)), Calentador (bivalente), Tomas de 12v, Enchufes de 220v, WC marino eléctrico.
Entretenimiento:
Altavoces, Radio AM/FM, Stereo.
Accesorios de Pesca:
Porta cañas, Pecera de capturas.
Cocina y electrodomésticos:
Cocina, Microondas (Combi).
Tapicerías:
Cojinería completa (Nuova 2021), Funda cónsola, 2 Funda asientos, Toldo (pozzetto).
NL
Bertram 37 Cabriolet "Victoria": Een geregenereerd icoon. Met de 37 Cabriolet luidde Bertram een nieuw tijdperk van snelheid en geavanceerde materialen in, met een uitstekend resultaat. Victoria is een zeldzame eenheid, gemaakt voor de Italiaanse markt met een origineel 220V elektrisch systeem en met uiterste zorg bewaard door de enige historische eigenaar. In de afgelopen twee jaar heeft een grote refit de standaard van de boot verhoogd: de installatie van nieuwe 500 pk Volvo-motoren en de volledige vernieuwing van de systemen laten deze boot er als nieuw uitzien. Verkrijgbaar in Toscane, is Victoria klaar om te zeilen en te verrassen met zijn staat en prestaties. Prijs plus commissies.
Elektronische navigatie-instrumenten:
Roerhoek indicator, Elektronische motorbediening, 2 Scheepscomputer (Volvo), Log (Raymarine), Dieptemeter (Raymarine), GPS (Raymarine), Kaartplotter (Raymarine), Marifoon (VHF Fly e VHF di rispetto in dinette).
Technische- en dekuitrusting:
2 Motor Alarm, Bilge Alarm, Waterdruk systeem, Accu's (nuove 2021), Acculader (12 V e 24 V), Buitendouche, Zoeklicht geïnstalleerd op spiegel, Hydraulische trimflappen, Brandblussysteem (con controllo esterno), Anker (ketting) spoelsysteem, Sfeerverlichting, Loopplank (elettroidraulica), Platform, 3 Automatische bilgepomp, Ingangsdeur, Walaansluiting 230V, Walaansluiting voor water, City-/Water-connection, Gelijkrichter, Elektrische ankerlier, Zwemtrap, Hoorn, Boeglier.
Huishoudelijke apparatuur aan boord:
Airconditioning (doppio ciclo (rev. 2021)), Warmwater boiler (bivalente), 12V Stopcontacten, 230V Stopcontacten, Elektrisch toilet.
Vermaak:
Luidsprekers, Radio AM/FM, Stereo.
Vissen Accessoires:
Houder voor vishengels, Bassin om vis in te bewaren.
Keuken & Apparatuur:
Keuken, Magnetron/Oven (Combi).
Bekleding:
Kussens (Nuova 2021), Stuurstand afdekking, 2 Stoelbekleding, Zonneluifel (pozzetto).
RU
Бертрам 37 Кабриолет «Виктория»: Регенерированная икона. С кабриолетом 37 года Бертрам открыл новую эру скорости и передовых материалов, добившись выдающегося результата. Victoria — редкая установка, созданная для итальянского рынка с оригинальной электрической системой 220 В и сохраненная с исключительной заботой единственным историческим владельцем. За последние два года масштабный ремонт поднял уровень лодки: установка новых двигателей Volvo мощностью 500 л.с. и полное обновление систем сделали лодку похожей на новую. Доступный в Тоскане, Victoria готов к плаванию и удивляет своим состоянием и характеристиками. Цена плюс комиссионные.
Электронные навигационные приборы:
Угол поворота, Electronic engine control, 2 Бортовой компьютер (Volvo), спидометр (Raymarine), Эхолот (Raymarine), GPS (Raymarine), плоттера (Raymarine), Радио VHF (VHF Fly e VHF di rispetto in dinette).
Техническое оснащение и оснащение палубы:
2 Аварийный сигнал двигателя, Аварийный сигнал трюма, Автоклав, аккумуляторы (nuove 2021), Зарядное устройство (12 V e 24 V), внешняя душа, Основные фары корме, Гидравлические закрылки, Системы противопожарные (con controllo esterno), Стиральная цепях, любезность фонари, сходни (elettroidraulica), Платформа, 3 Автоматический трюмный насос, Входная дверь, Прямая розетка от причала, Прямая розетка от причала, Выпрямитель, Электрическая якорная лебедка, Трап ванной, Рупор, Токарно лебедки.
Бытовое оснащение на борту:
Кондиционер (doppio ciclo (rev. 2021)), котлом (bivalente), Внутренние розетки 12v, Внутренние розетки 220v, Электрический морской туалет.
Развлечения:
динамиков, Radio AM/FM, Привет-Fi.
Рыболовные аксессуары:
скобки удочка, Емкость для улова.
Кухня и бытовые приборы:
Кухня, микроволновых (Combi).
Обивка:
полное подушки (Nuova 2021), Защитное покрытие консоли, 2 Покрытие сидений, палатка для ВС (pozzetto).
Detalles
Posición solo aproximada, no para indicaciones
| Información general | |
|---|---|
| Fabricante: | Bertram Yacht |
| Modelo: | 37' Convertible |
| Año: | 1990 |
| Condición: | Usado |
| Motor | |
| Motor: | Volvo Penta D9-500, 500 hp |
| Tipo de combustible: | Combustible diesel |
| Mediciones | |
| Largo: | 11.52 m (37.80 ft) |
| Anchura: | 3.97 m (13.02 ft) |
| Profundo: | 1.4 m (4.59 ft) |
| Alojamiento | |
| Cabañas: | 0 |
| Literas: | 0 |